BauHouse 65

Parterowy dom o kompaktowej i funkcjonalnej bryle

BauHouse65 to ekonomiczny w budowie dom jednorodzinny zaprojektowany w oparciu o prostą, zwartą konstrukcję. To rozsądna alternatywa dla mieszkania — własny dom w kontrolowanym budżecie.

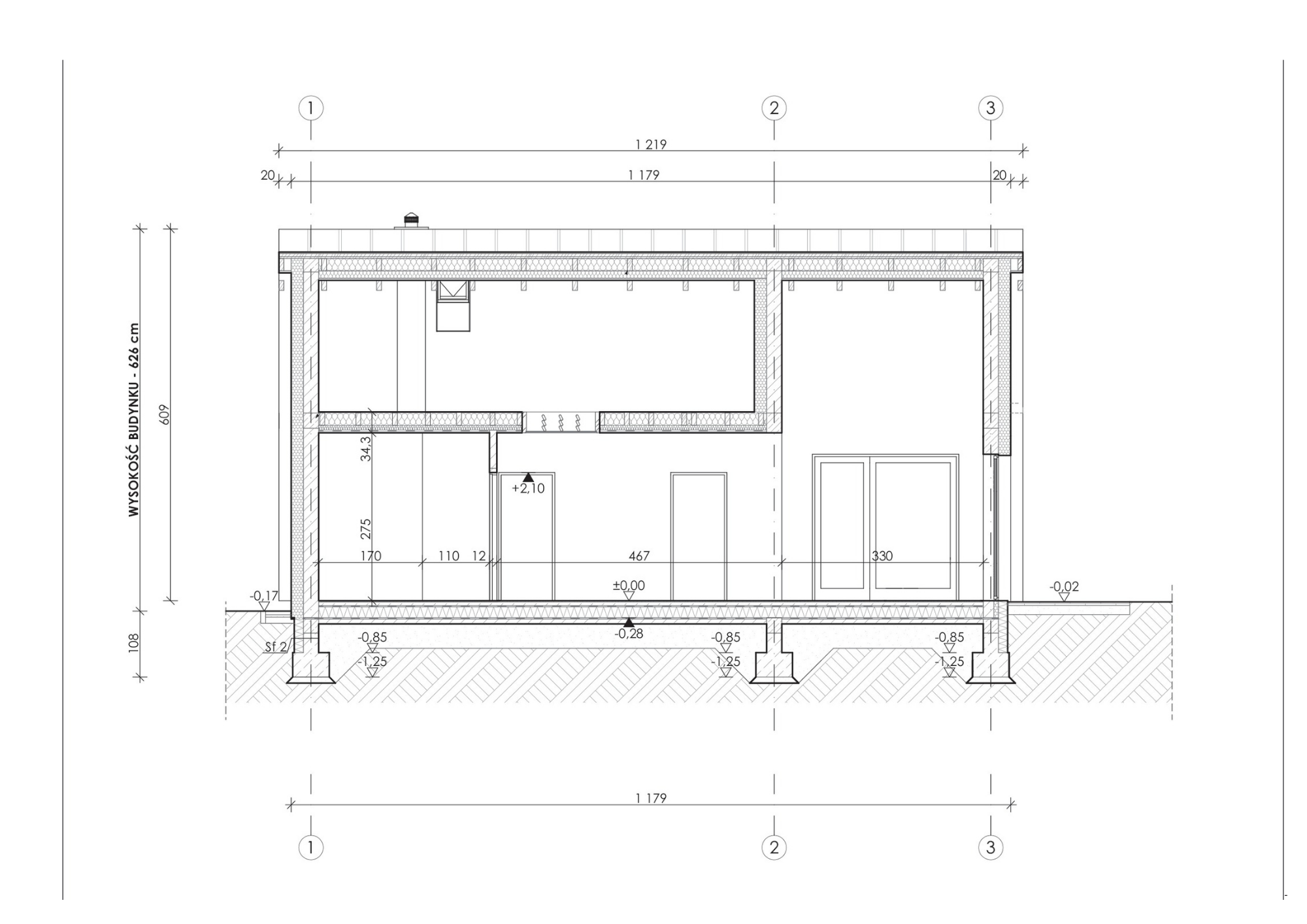
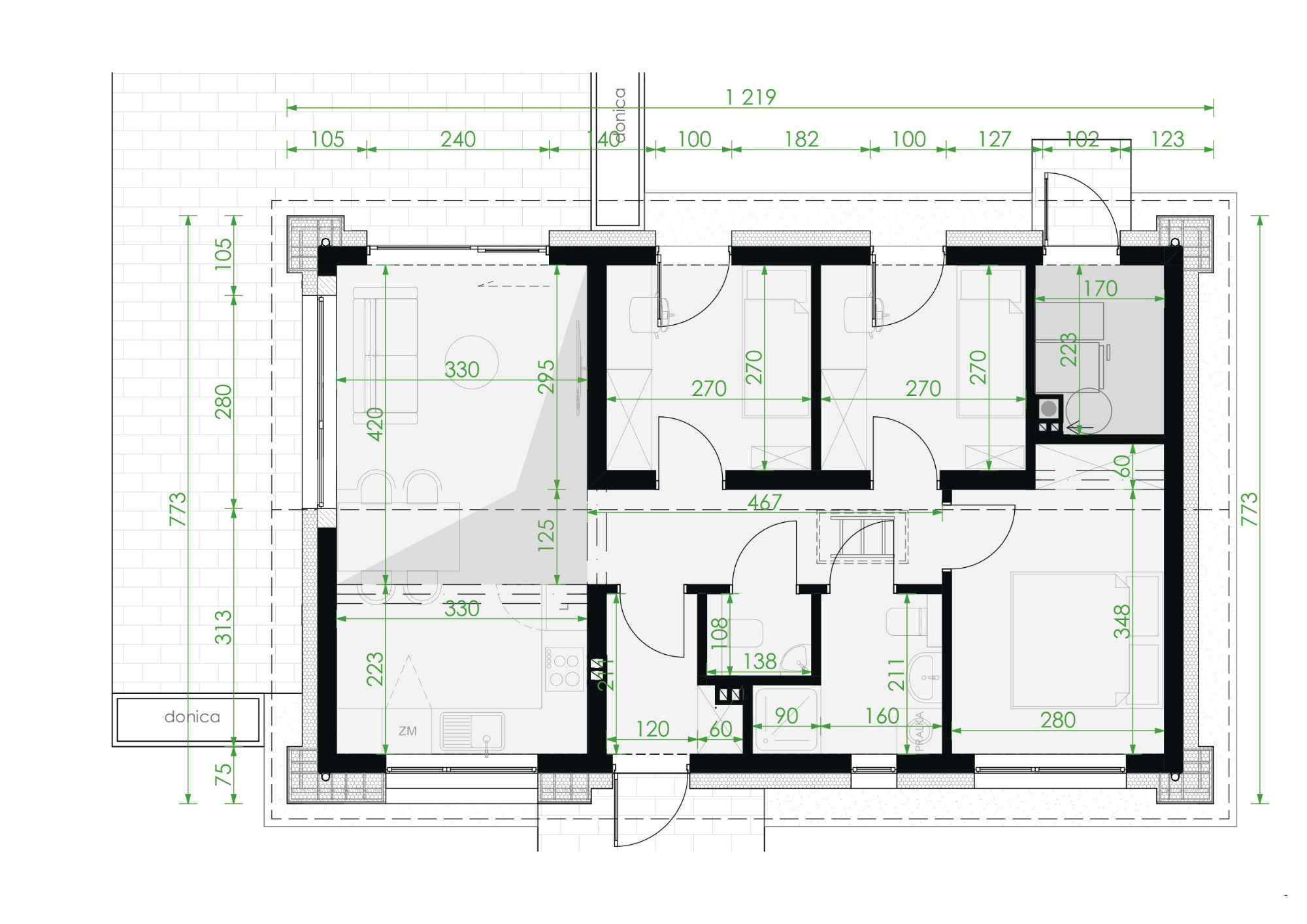
Rzuty

Układ funkcjonalny

ChatGPT Image 11 lut 2026, 15_11_28

Bezpieczne finansowanie

Z nami inwestujesz bez ryzyka. Nie pobieramy zaliczek przy podpisaniu umowy – płacisz wyłącznie za zakończone i odebrane etapy prac. Dzięki temu masz pełną kontrolę nad wydatkami, przejrzysty harmonogram finansowy i pewność, że każdy kolejny krok budowy jest realizowany zgodnie z ustaleniami.

Szybkość budowy

Warianty stalowe i żelbetowe bazują na prefabrykacji, dlatego na placu budowy odbywa się głównie montaż – to znacząco skraca czas realizacji w porównaniu do klasycznych metod. Beton komórkowy pozwala z kolei zachować budżetowy i prosty tryb budowy, nadal w oparciu o standaryzację i powtarzalność rozwiązań. Krótsza realizacja to mniej stresu i szybciej odebrany dom.

Duża wytrzymałość konstrukcj

Dobieramy system konstrukcyjny do wymagań inwestycji: stal zapewnia wysoką nośność przy mniejszej masie, prefabrykowany żelbet – najwyższą odporność na obciążenia i warunki atmosferyczne, a beton komórkowy – świetne parametry cieplne i komfort użytkowania. W każdym przypadku stawiamy na jakość, przewidywalność i bezpieczeństwo.

komfort & design

Dom szybki jak prefabrykacja, trwały jak solidna konstrukcja

Dziś idziemy o krok dalej. Dzięki doświadczeniu i pasji do innowacji rozwijamy naszą działalność – wprowadzając do oferty budowę domów w trzech systemach: betonu komórkowego, konstrukcji stalowej oraz prefabrykowanych elementów żelbetowych. Dobór technologii zawsze wynika z projektu, działki i potrzeb inwestora.

Jak wyglądają płatności?

Płatności rozdzielone są na wygodne transze, u nas płacisz za wykonane etapy, w proporcji: 

Przy zamówieniu domu sporządzana jest umowa wraz z załącznikami, w których zawarte są szczegóły wykonania domu. Podany jest też termin montażu w którym zostanie zbudowany dom.

ChatGPT Image 11 lut 2026, 15_03_49

Standard wykonania obejmuje:

  • system konstrukcyjny w wybranej technologii (beton komórkowy / stal / prefabrykowany żelbet),
  • płytę fundamentową
  • pełne przeszklenie szczytowe
  • stolarkę okienną i drzwi zewnętrzne
  • maty grzewcze (folie) ogrzewania podłogowego
  • komplet instalacji: elektrycznej, wodnej, kanalizacyjnej i wentylacyjnej
  • wykończenie ścian płytami g-k
  • wylewkę betonową
  • schody wewnętrzne
  • garaż w bryle budynku
  • transport i montaż na miejscu inwestycji

Dodatkowe możliwości:

  • rekuperacja
  • panele fotowoltaiczne
  • pompa ciepła
  • magazyn energii
  • ogrzewanie podłogowe
  • szambo
  • oczyszczalnia przydomowa
  • okna typu HST

Jako liderzy w produkcji wysokiej jakości polistyrenu EPS, z dumą dostarczamy nasze rozwiązania nie tylko na rynek słowacki, ale również do Czech, Austrii i Polski.

Wszystkie prawa zastrzeżone - Bautherm